Casa indipendente dalle dimensioni introvabili – 4 camere, giardino privato e garage, in centro paese
Nel cuore del paese proponiamo una casa indipendente dalle dimensioni oggi introvabili, ideale per chi cerca spazi veri, comfort e la comodità di avere tutti i servizi a pochi passi.
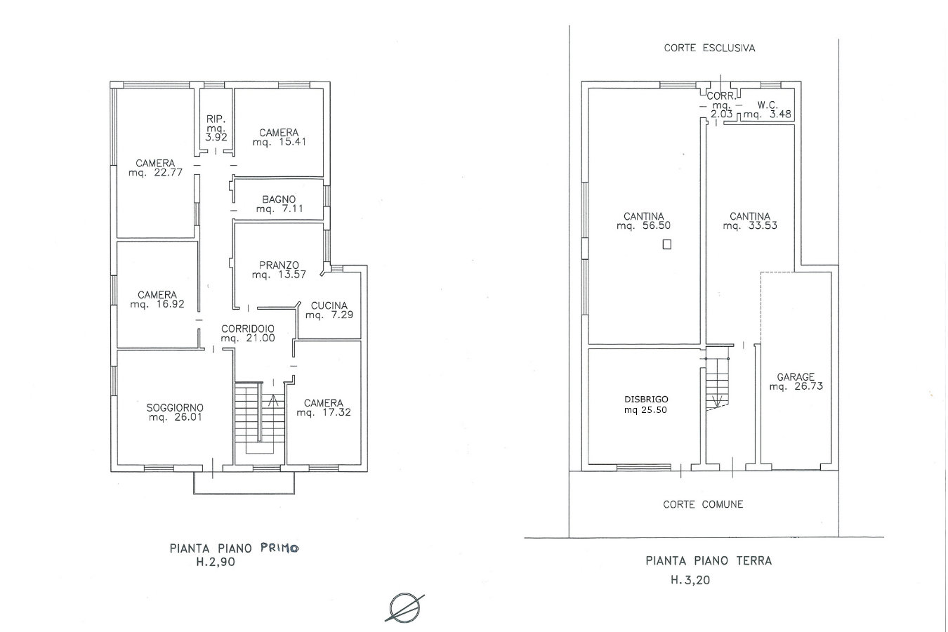
Al piano primo si sviluppa l’abitazione principale, caratterizzata da quattro camere da letto ampie e luminose: una soluzione rara, perfetta per famiglie numerose o per chi necessita di ambienti dedicati allo studio, smart working o hobby.
Il piano terra, grazie alle generose altezze, offre la possibilità di creare un secondo appartamento indipendente: un’opportunità ideale per ospitare genitori, figli, oppure per chi valuta una soluzione bifamiliare o un’area studio/lavoro separata.
A completare la proprietà troviamo un garage comodo e un giardino privato, perfetto per momenti di relax all’aria aperta.
Costruita nel 1963 e con classe energetica G, questa casa rappresenta una base solida e versatile per chi desidera personalizzare gli ambienti secondo il proprio stile.
Una proposta unica, spaziosa e in una posizione davvero privilegiata.


























