Condividi:
Vendita
Cod. annuncio: GSB-40-LT

Casa a schiera

€ 108.000

Descrizione

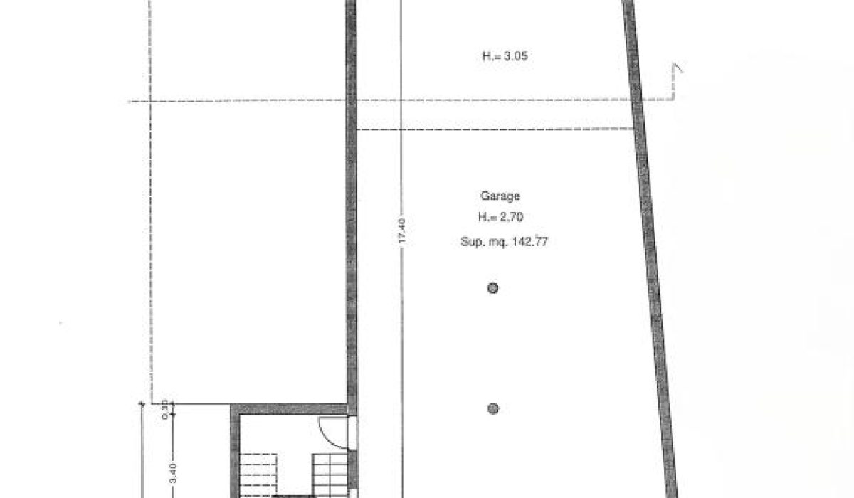
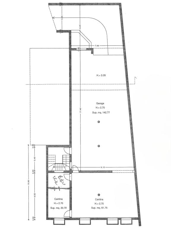
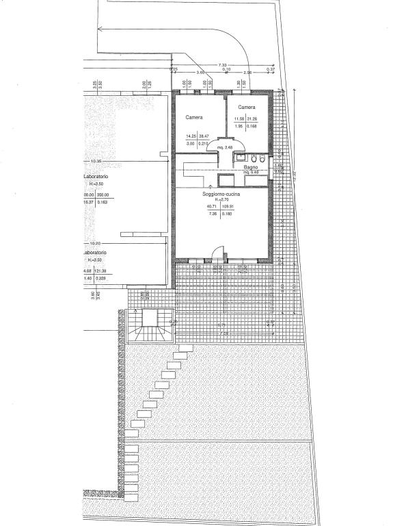
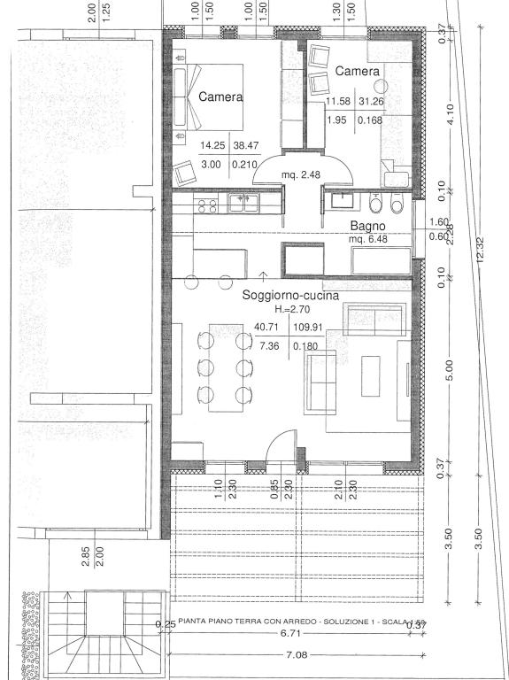
In splendida posizione panoramica, proponiamo casa affiancata allo stato grezzo in contesto di trifamiliare. L’immobile è caratterizzato da un ampio locale interrato, ideale per coloro che svolgono un’attività e che hanno bisogno un magazzino/deposito. Lo spazio abitativo si sviluppa invece al piano terra e potrebbe accogliere una luminosa zona giorno, due camere, uno o due bagni. Completa la proprietà un giardino esclusivo di circa 170 mq.

La vendita allo stato attuale è di € 108.000,00, ma si può valutare la vendita anche dell’immobile finito a partire da € 240.000,00.

Non esitate a contattarci per maggiori informazioni!

Caratteristiche proprietà

Contattaci per organizzare una visita o per maggiori informazioni.

DETTAGLI PROPRIETÀ
Superficie commerciale:
220 mq
Camere:
2
Anno costruzione:
1966
Piano:
- su più piani
Bagni:
2
CARATTERISTICHE ESTERNE
Garage:
Posti auto:
No
Terrazzo:
No
Giardino:
Non presente
Superficie giardino:
EFFICIENZA ENERGETICA
Riscaldamento:
No
Camino:
Aria condizionata:
No
Efficienza energetica:
Immobile non soggetto a classificazione energetica.
Condividi:
Contattaci per questo immobile

Questo campo serve per la convalida e dovrebbe essere lasciato inalterato.
Nome*
Privacy*
(*) campo richiesto
Gesticasa di San Bonifacio (VR)

Immobili in evidenza

Selezionando un comune dall'elenco, avvieremo la chat con l'agenzia di zona.

Selezionare un comune dalla lista. Se il comune non è presente selezionare la voce "Comune non presente nell'elenco".