Condividi:
Vendita
Cod. annuncio: GVA-57-DF

Tricamere

Informazioni in agenzia

Descrizione

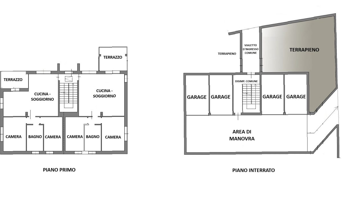
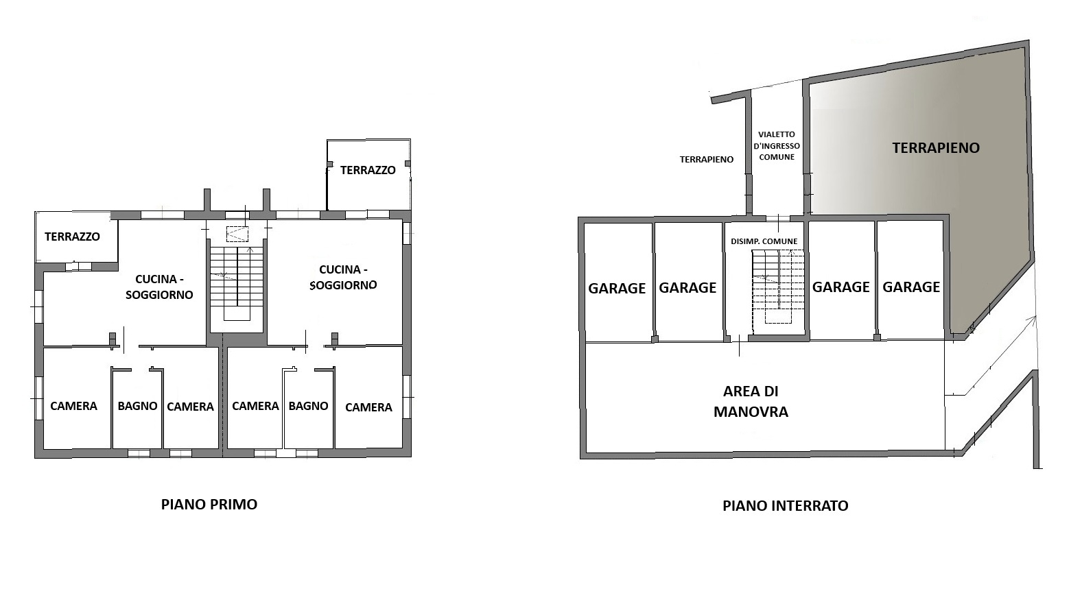
Valdagno – In posizione comoda al centro in un contesto di sole quattro unità abitative proponiamo appartamenti tricamere di nuova costruzione.

Le soluzioni si trovano al piano terra e al piano primo, ognuna composta da cucina e soggiorno in open space, tre camere da letto (una matrimoniale, una doppia e una singola), due servizi e garage doppi al piano interrato.

A completare le unità troviamo il terrazzo per l’appartamento al piano primo e il giardino per l’appartamento al piano terra.

Ogni soluzione ha la possibilità di scelta delle finiture ed è in classe A4 !!!

Caratteristiche proprietà

Contattaci per organizzare una visita o per maggiori informazioni.

DETTAGLI PROPRIETÀ
Superficie commerciale:
Da 100 a 250 mq
Camere:
3
Anno costruzione:
1966
Piano:
1 - su più piani
Bagni:
2
CARATTERISTICHE ESTERNE
Garage:
DOPPIO
Posti auto:
No
Terrazzo:
Sì - 13 mq
Giardino:
Privato
Superficie giardino:
EFFICIENZA ENERGETICA
Riscaldamento:
Sì
Camino:
Aria condizionata:
Sì
Efficienza energetica:

kWh/m² anno

Prestazione energetica del fabbricato
Prestazione energetica globale
Condividi:
Contattaci per questo immobile

Questo campo serve per la convalida e dovrebbe essere lasciato inalterato.
Nome*
Privacy*
(*) campo richiesto
Gesticasa di Valdagno (VI)

Immobili in evidenza

Selezionando un comune dall'elenco, avvieremo la chat con l'agenzia di zona.

Selezionare un comune dalla lista. Se il comune non è presente selezionare la voce "Comune non presente nell'elenco".