In un elegante e moderno contesto residenziale di nuova costruzione, proponiamo una villetta a schiera progettata per offrire comfort, funzionalità e qualità costruttiva. L’abitazione, disposta su due livelli, gode di giardino privato, ideale per chi desidera vivere in un ambiente tranquillo senza rinunciare agli spazi esterni.
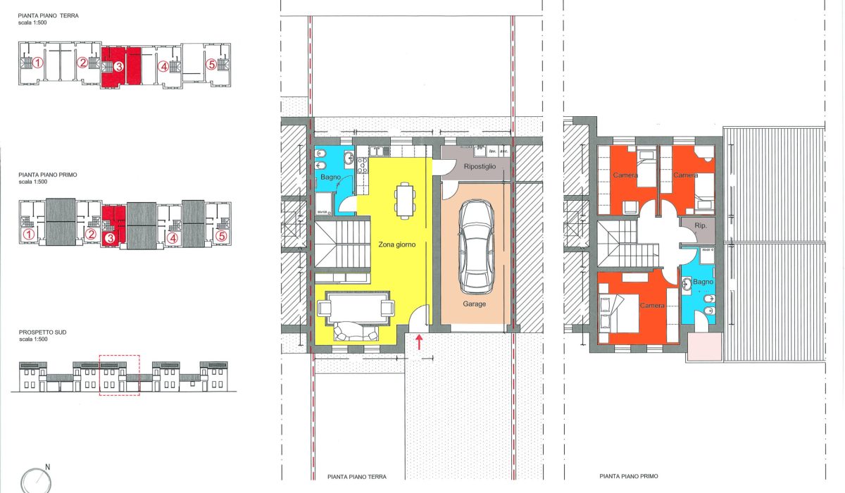
Piano Terra – Zona giorno luminosa e funzionale
Il piano terra è pensato per accogliere la vita quotidiana con ambienti ampi e ben distribuiti:
– Zona giorno luminosa e angolo cottura
– Bagno di servizio
– Ripostiglio, utile come dispensa o locale tecnico
Le grandi aperture verso il giardino garantiscono luminosità naturale e una piacevole continuità tra interno ed esterno.
Piano Primo – Zona notte confortevole
La zona notte, situata al primo piano, offre:
– Tre camere da letto, ideali per famiglie o per chi necessita di uno studio
– Secondo bagno, ampio e ben rifinito
– Ulteriore ripostiglio, sempre utile per mantenere ordine e praticità
Pertinenze e spazi esterni
A completare la proprietà:
– Garage privato al piano terra, collegato comodamente all’abitazione
– Giardino esclusivo, perfetto per pranzi all’aperto, area giochi o zona relax



























