Condividi:
Vendita
Cod. annuncio: GMM-161-LS

Bifamiliare

€ 350.000

Descrizione

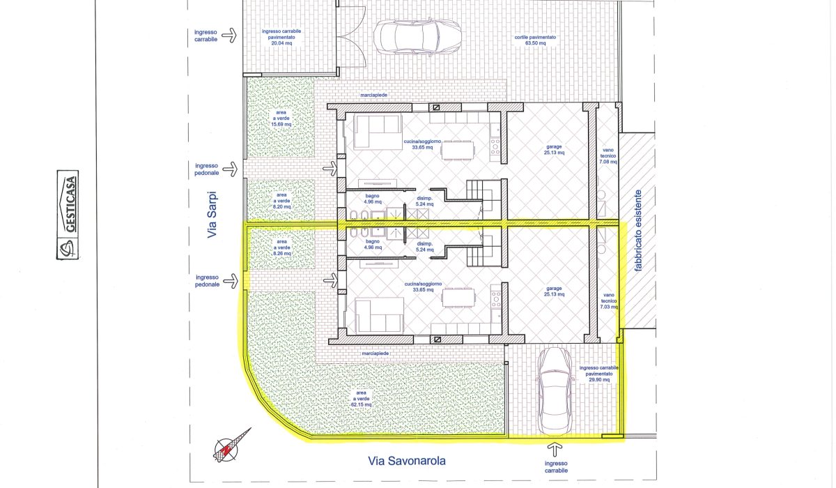
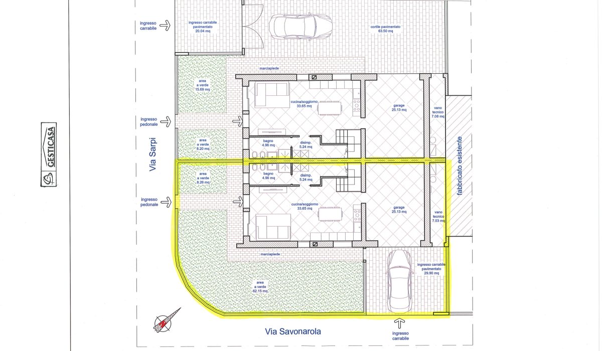
Bifamiliare di nuova costruzione in zona centrale a Brendola, di fronte al centro medico e comoda a tutti i servizi.
La porzione attualmente disponibile dispone di un giardino di circa 70 m² che circonda due lati dell’abitazione.

Al piano terra si trovano una luminosa e ampia zona giorno, un bagno e una lavanderia.
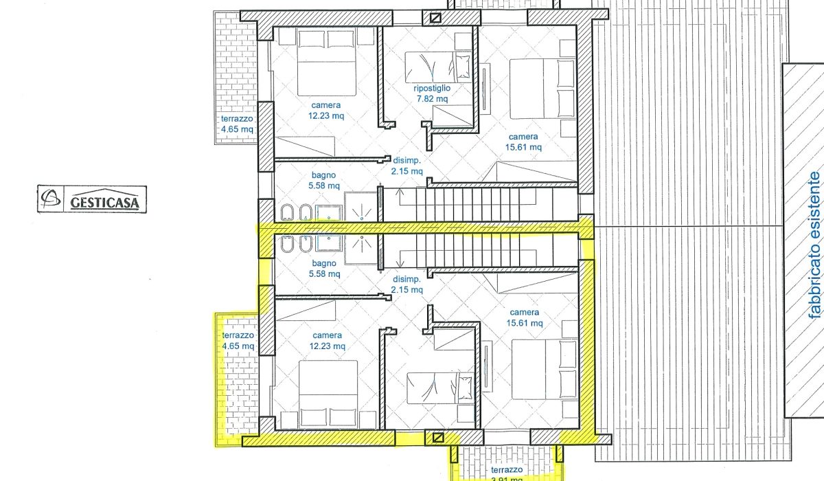
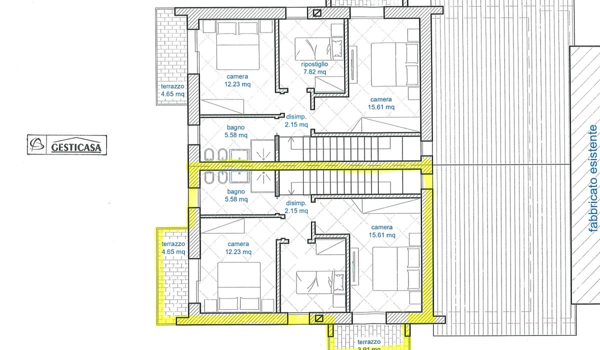
Al piano primo sono presenti tre camere da letto e un secondo bagno.

A completare l’immobile vi sono un ampio garage e due posti auto esclusivi.
La casa verrà consegnata con finiture personalizzabili da capitolato e sarà in classe energetica A++.

Caratteristiche proprietà

Contattaci per organizzare una visita o per maggiori informazioni.

DETTAGLI PROPRIETÀ
Superficie commerciale:
120 mq
Camere:
2
Anno costruzione:
1966
Piano:
-1 - su più piani
Bagni:
2
CARATTERISTICHE ESTERNE
Garage:
Singolo
Posti auto:
Terrazzo:
Sì - 1 mq
Giardino:
Privato - 70 mq
Superficie giardino:
EFFICIENZA ENERGETICA
Riscaldamento:
Camino:
Aria condizionata:
Efficienza energetica:

kWh/m² anno

Prestazione energetica del fabbricato
Prestazione energetica globale
Condividi:
Contattaci per questo immobile

Questo campo serve per la convalida e dovrebbe essere lasciato inalterato.
Nome*
Privacy*
(*) campo richiesto
Gesticasa di Montecchio Maggiore (VI)

Immobili in evidenza

Selezionando un comune dall'elenco, avvieremo la chat con l'agenzia di zona.

Selezionare un comune dalla lista. Se il comune non è presente selezionare la voce "Comune non presente nell'elenco".